22
$2,400 Rent
Listed 2 hours ago
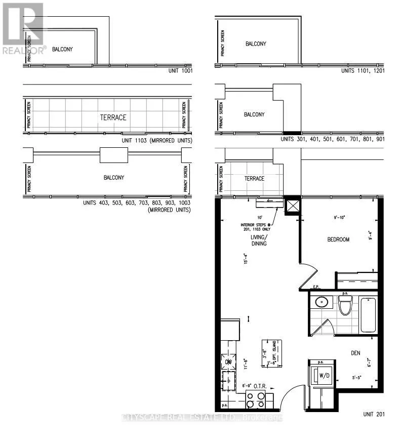
201 - 100 EAGLE ROCK WAY
· 1+1
· 1.0
· 1
· 500 - 599
Key Facts
Key facts for 201 - 100 EAGLE ROCK WAY
Property Type
Condo, Apartment
Parking
Garage: Yes, 1 parking
MLS #
N12450677
Size
500 - 599 sqft
Basement
-
Listed on
-
Lot size
-
Tax
-
Days on Market
-
Year Built
-
Maintenance Fee
-
Description
Welcome home to this spacious 1+den suite in a recently built boutique building. Featuring a highly functional floor plan, thoughtful upgrades, and floor to ceiling windows offering a bright, airy feel throughout. Enjoy unobstructed north exposure, a good-sized den perfect for a home office, and the... convenience of both parking and a locker included. Located steps from Walmart and nearby shopping, adjacent to Maple GO Station, and with easy access to Highway 400, this suite offers the perfect blend of comfort and connectivity. (id:10452)
Similar Properties (No results)
Room Types
Bedroom
-
Dimensions 2.997 m x 2.845 m
91.78 sqft
Den
-
Dimensions 1.65 m x 2.01 m
35.7 sqft
Kitchen
-
Dimensions 3.556 m x 3.048 m
116.67 sqft
Listing courtesy of: CITYSCAPE REAL ESTATE LTD.
This REALTOR.ca listing content is owned and licensed by REALTOR® members of The Canadian Real Estate Association.