40
$1,998,000 Sale
Listed 2 hours ago
5811 MONCTON STREET
· 4
· 4.0
· 4
· 2672
Key Facts
Key facts for 5811 MONCTON STREET
Property Type
House, House
Parking
Garage: Yes, 4 parking
MLS #
R3056679
Size
2672 sqft
Basement
-
Listed on
-
Lot size
-
Tax
-
Days on Market
-
Year Built
2016
Maintenance Fee
-
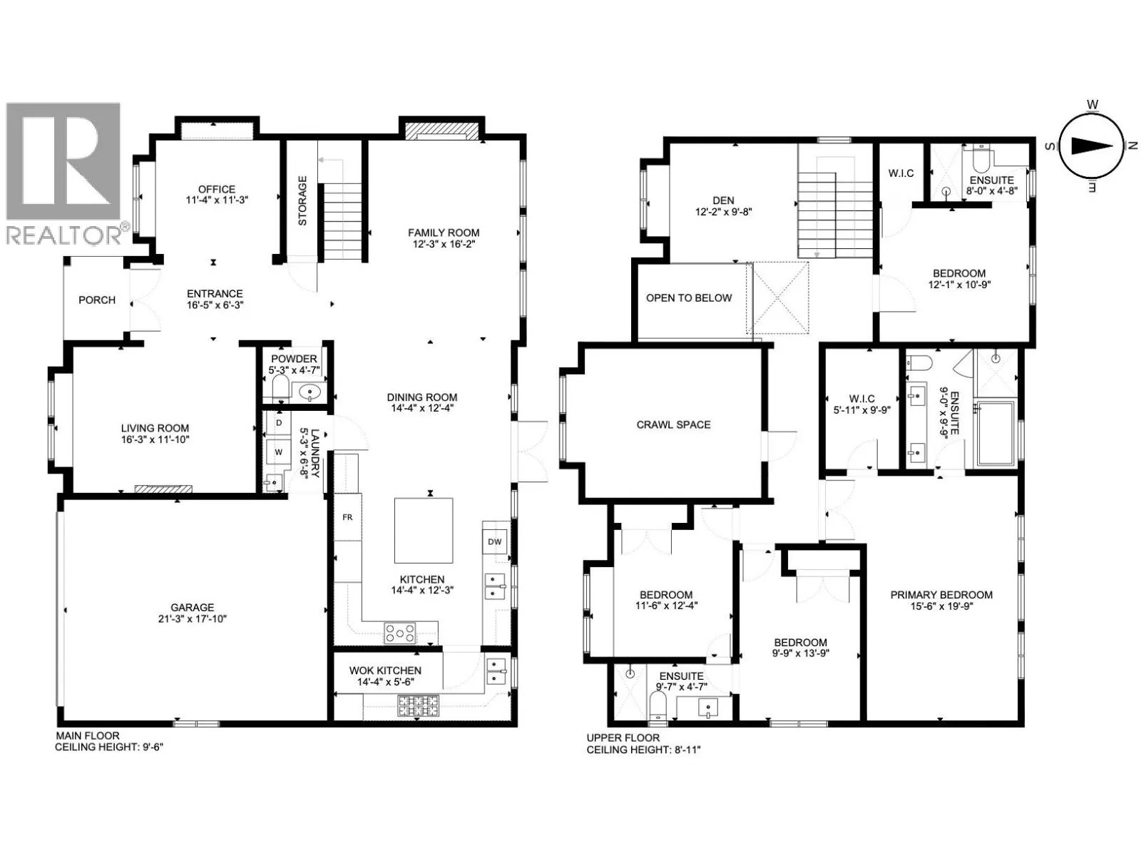
Description
Absolute Gorgeous Semi Custom Home located at prestige Steveston Westwind. This luxury home is loaded with all bells & whistles, South facing, 4 bed, 2 den, 2 kitchen, Miele appliances, quartz counters, radiant floors, stone & Hardy Plank exterior, air conditioned, HRV, Central Vacuum. High End f...ixtures, 10 FT ceiling on main. Minutes to Steveston Village, schools, community center & Dyke. View Floor plan. HD photos 3D Matterport & video with listing. See to appreciate. (id:10452)
Similar Properties (No results)
Listing courtesy of: RE/MAX Westcoast
This REALTOR.ca listing content is owned and licensed by REALTOR® members of The Canadian Real Estate Association.